ALUPROF MB 70 aluminium ramen


MB-70 is een modern aluminium systeem dat wordt gebruikt voor het maken van externe architecturale elementen die thermische en akoestische isolatie vereisen, zoals verschillende soorten ramen, deuren, vestibules, etalages en ruimtelijke structuren.


Maak kennis met het MB-70 Raam- en deursysteem met thermische isolatie:

  • Luchtdoorlatendheid - Klasse 4
  • Waterdichtheid - Klasse E1200
  • Weerstand tegen windbelasting - Klasse C5

MEER INFORMATIE

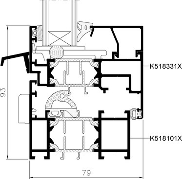
De systeemprofielen hebben een driekamerstructuur. De bouwdiepte van de raamdelen is: 70 mm (kozijn), 79 mm (vleugel) en de deur is respectievelijk 70 mm en 70 mm. Dergelijke toegepaste dieptes van de vleugel- en kozijnsecties geven het effect van een enkel vlak aan de buitenkant wanneer gesloten (in het geval van een raam), en het effect van vlakke oppervlakken van vleugels en kozijn (in het geval van deuren). De vorm van de profielen zorgt voor slanke en duurzame raam- en deurconstructies.

Het MB-70-systeem wordt gekenmerkt door een sensationeel lage waarde van de U- warmteoverdrachtscoëfficiënt dankzij het gebruik van speciale thermische onderbrekingen en pakkingen. Dit is van groot belang in het tijdperk van toenemende eisen op het gebied van energiebeheer en milieubescherming. De UF-coëfficiënt voor de structuur van het MB- 70-systeem varieert afhankelijk van de gebruikte profielen en accessoires van 1,5 tot 2,39 W/ (m2K). Het systeem maakt gebruik van geprofileerde omega-vormige thermische onderbrekingen, 34 mm breed (ramen) en 24 mm breed (deuren) gemaakt van polyamide versterkt met glasvezel. De aangeboden vorm van de af standhouders verhoogt de stijfheid van de profielen ten opzichte van vlakke af standhouders en vergemakkelijkt de afwatering van de secties, waardoor een goede thermische isolatie in alle weersomstandigheden wordt gegarandeerd. De thermische onderbrekingen die in de ramen worden gebruikt hebben bovendien een afdichting op het grensvlak tussen de sectie en de af standhouder, evenals uitsteeksels die de kamer tussen de interne en externe aluminiumsecties in drie delen verdelen. De dichtheid wordt gegarandeerd door het gebruik van speciale pakkingen van tweecomponenten EPDM-synthetisch rubber vast en celvormig, wat de weerstand tegen veroudering gedurende vele jaren garandeert en een zeer goede thermische isolatie garandeert. MB-70 is het eerste systeem waarin dit type materiaal is gebruikt om de centrale pakking te maken.

Kenmerkend voor het systeem is de nauwe verbinding met de raam- en deursystemen MB- 45, MB-59S en MB-70. Het aannemen van een dergelijke constructieve veronderstelling maakte het mogelijk om veel compatibele elementen in deze systemen te verkrijgen en te gebruiken bijv. gemeenschappelijke glaslatten, hoeken, afdichtstrippen, beglazing en dekselpakkingen, gemeenschappelijke fittingen, sloten, scharnieren en vele identieke technologische processen zoals vastzetten van veters en dwarsbalken, het lijmen van hoeken, het ponsen van verschillende uitsparingen enz. Een van de effecten van deze eenwording is dat het uiterlijk en het uiterlijk van producten: ramen, deuren, enz., gemaakt in verschillende externe of interne ontwikkelingssystemen bijna identiek is.

Het MB-60-systeem vormt de basis voor oplossingen met verhoogde thermische isolatie: MB-60HI, MB-60US HI, MB-60E HI, MB-60EF HI. Op basis van dit systeem is het ook mogelijk om inbraak werende constructies te maken.


Bespaar tijd en geld

Vul het formulier in - dit is de snelste manier om contact met ons op te nemen

Voornaam en achternaam

E-mail adres


Telefoonnummer


Stad


Gefeliciteerd. Uw bericht is succesvol verzonden
Fout, probeer het opnieuw. Uw bericht is niet verzonden